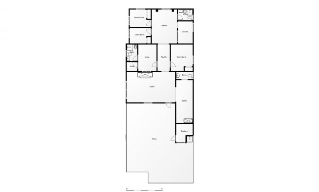
Es wird eine exklusive Immobilie mit großem Potenzial vorgestellt, die sich am Stadtrand von Torrevieja, in der prestigeträchtigen Urbanisation Los Altos, gegenüber dem Hotel Atlas, in einer Gegend mit hoher touristischer und residentialer Aktivität das ganze Jahr über befindet.~Das Haus ist perfekt für ganzjährige Nutzung, und die angrenzenden Gebäude bieten Potenzial, den Wohnraum zu erweitern oder sogar Einnahmen zu erzielen, indem die Nutzfläche erhöht wird, z. B. für Langzeitvermietung.~~Das Anwesen besteht aus zwei unabhängigen Immobilien auf einem Grundstück von etwa 440 m2 mit einer Gesamtbaufläche von ca. 310 m2, was zahlreiche Möglichkeiten für große Familien oder diejenigen bietet, die zusätzlichen Platz für Gäste, Vermietung oder private Nutzung suchen, wie oben erwähnt.~~Das Hauptgebäude im Erdgeschoss besticht durch Geräumigkeit, Charakter und Komfort. Es verfügt über 4 große Schlafzimmer und 2 Badezimmer, eines davon angepasst für Menschen mit Behinderung oder ältere Personen, ein großes Wohn-Esszimmer mit Kamin und eine separate Küche. Alle Räume sind hell und komfortabel, auf das Familienleben ausgelegt, wobei das Herzstück des Hauses ein großes Salon im kastilischen Stil mit traditionellem Kamin ist, das Wärme und Persönlichkeit verleiht.~Das Anwesen hat keinen Wasseranschluss. Beide Immobilien werden vollständig leer übergeben, ohne Möbel oder Geräte.~~Vom Hauptgebäude aus gelangt man direkt zum gemeinschaftlichen Innenhof, in dem sich der private Pool befindet, was eine perfekte Umgebung für Entspannung, Freizeit und Treffen im Freien schafft.~~Die zweite Immobilie ist ein unabhängiger Bereich, der früher intern über das zentrale Grundstück mit dem Hauptgebäude verbunden war, derzeit jedoch getrennt ist, sodass zwischen den beiden Bereichen vollständige Privatsphäre besteht oder eine einfache Wiederintegration möglich ist.~~Dieser zweite Bereich bietet vielfältige Nutzungsmöglichkeiten, sobald die erforderlichen Umnutzungsarbeiten durchgeführt wurden: Er kann in ein zweites Wohnhaus, Gästeapartment, zusätzlichen Familienbereich oder unabhängigen Bereich innerhalb derselben Immobilie umgewandelt werden. Außerdem verfügt er über eine Terrassen-Solarium über dieser zweiten Immobilie, ideal für den Sommer, zum Grillen oder als Chill-out-Bereich für Familie und Freunde.~~Lage~In einer strategischen Lage von Los Altos, umgeben von Wohnanlagen und sehr nah an allen Dienstleistungen, liegt die Immobilie nur wenige Minuten von Stränden, Einkaufszentren, Restaurants, Golfplätzen und den wichtigsten Verkehrsverbindungen entfernt.~~Eine einzigartige Immobilie mit Charakter und Vielseitigkeit, ideal für diejenigen, die Platz, Privatsphäre und eine privilegierte Lage an der Costa Blanca suchen, mit vielen Erweiterungsmöglichkeiten, um den Wert der bestehenden Immobilie zu steigern.~Preis: 449.000 €~Steuern und Kaufnebenkosten nicht inbegriffen (gemäß geltender Gesetzgebung). Eine Aufstellung der zusätzlichen Kosten wird vor der Reservierung zur Verfügung gestellt.~